Moradia - V3 - Casais Brancos

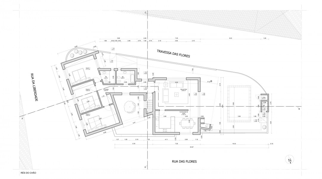
- 3 quartos, 1 com casa de banho privativa
- 2 casa de banho, 1 de apoio à piscina
- Churrasqueira
- Garagem com 40.90 m3
- Piscina com 3.30 m3
- Acessibilidades
- Alçado
- Alçado
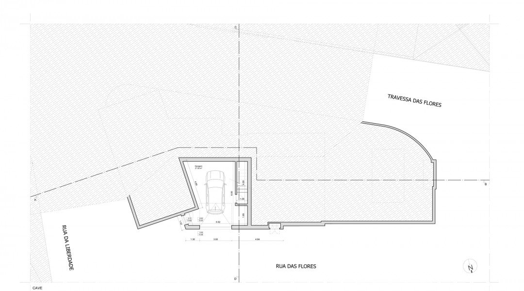
- Cave
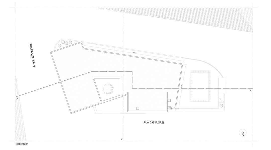
- Cobertura
- Cortes
- Envolvente
- Foto do terreno
- Foto do terreno
- Foto do terreno
- Foto do terreno
- Foto do terreno
- Rés do Chão
Planta do imóvel