
-
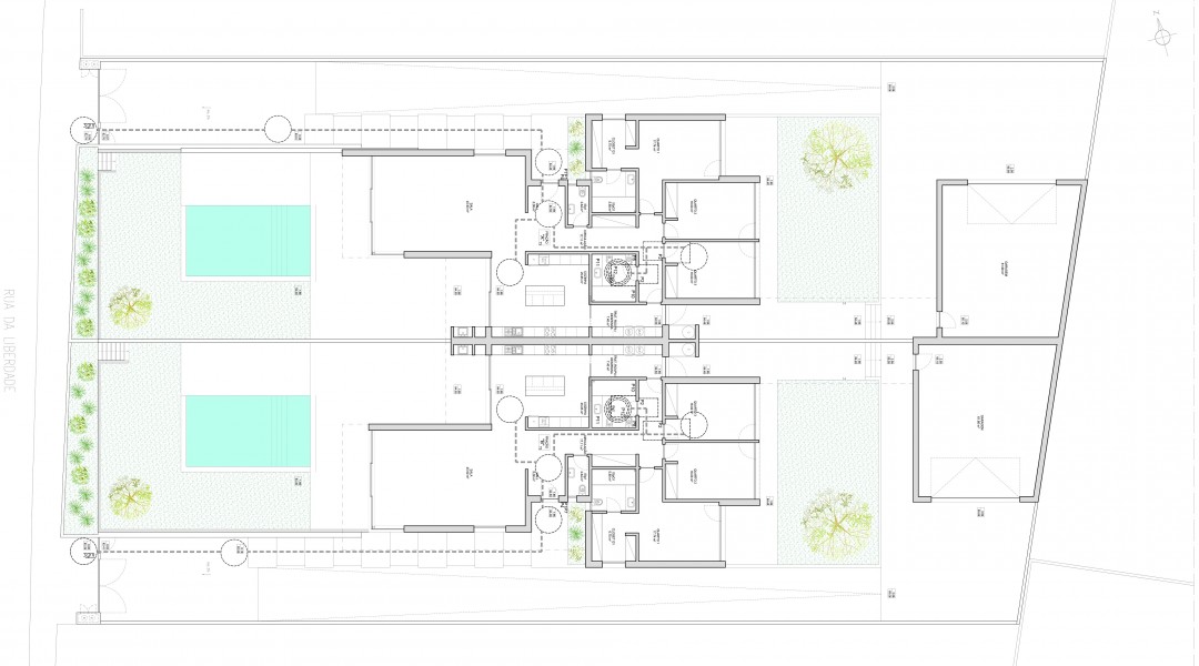
FRAÇÃO A - VENDIDA
-
Rés do Chão
- Suite1 – 17,74 M (WC - 5,88 M / CLOSET - 6,75 M)
- WC 1 – 2,64 M
- WC 2 – 6,75 M
- Cozinha – 25,85 M
- Tratamento de Roupa / Despensa - 7,40 M
- Sala Comum – 45,90 M
- Logradouro com Churrasqueira –
- Piscina –
- Garagem – 61,99 M
-
-
FRAÇÃO B - VENDIDA
-
-
RÉS DO CHÃO
-
Suite1 – 17,74 M (WC - 5,88 M / CLOSET - 6,75 M)
-
WC 1 – 2,64 M
-
WC 2 – 6,75 M
-
Cozinha – 25,85 M
-
Tratamento de Roupa / Despensa - 7,40 M
-
Sala Comum – 45,90 M
-
Logradouro com Churrasqueira –
-
Piscina –
-
Garagem – 61,99 M



























