
-
LADO NORTE
-
CAVE
Garagem – 88,67 M -
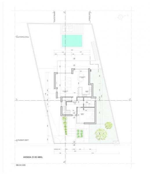
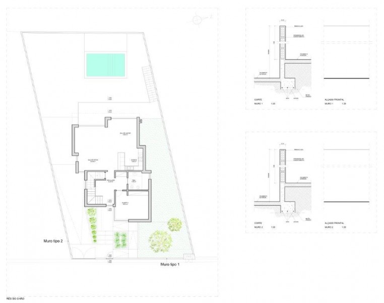
RÉS DO CHÃO
-
Quarto 1 – 16,53 M
-
WC – 6,43 M
-
Cozinha – 13,95 M
-
Sala de Jantar – 14,63 M
-
Sala de Estar – 24,06 M
-
Piscina – 15 M
-
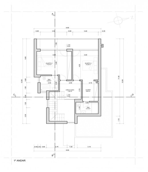
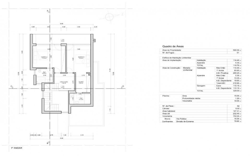
1 º ANDAR
-
Quarto 2 - 17,24 M (Wc 5,28M)
-
Quarto 3 - 14,28 M (WC 5,10M / Closet 6,62 M)
-
PREÇO - 300 000,00€
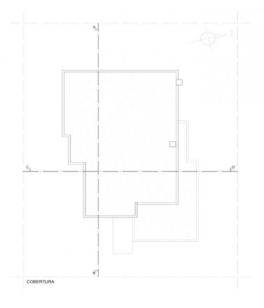
Planta de implantação do imóvel (norte)
-
LADO SUL
-
CAVE
-
Garagem – 88,67 M
-
RÉS DO CHÃO
-
Quarto 1 – 16,53 M
-
WC – 6,43 M
-
Cozinha – 13,95 M
-
Sala de Jantar – 14,63 M
-
Sala de Estar – 24,06 M
-
Piscina – 15 M
-
1 º ANDAR
-
Quarto 2 - 17,24 M (Wc 5,28M)
-
Quarto 3 - 14,28 M (Wc 5,10M / Closet 6,62 M)
-
PREÇO - VENDIDA
Planta de implantação do imóvel (sul)
-4fe25229f3.jpg)

-127eaab34a.jpg)
-972a32b93e.jpg)
-25f8d4ab89.jpg)
-ce0423f994.jpg)
-7c17cdd298.jpg)
-ac37711a50.jpg)








-54908cad79.jpg)

-fb7d1fce49.jpg)



-67d6560b22.jpg)


-b8c6980df2.jpg)



-76b9534af9.jpg)


-fd60a78c27.jpg)
