-

-
DISPONIBILIDADE
-
1 - T1
-
3 - T2
-
7 - T3
-
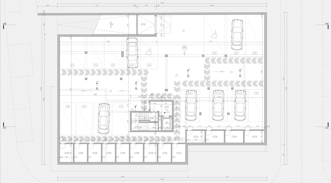
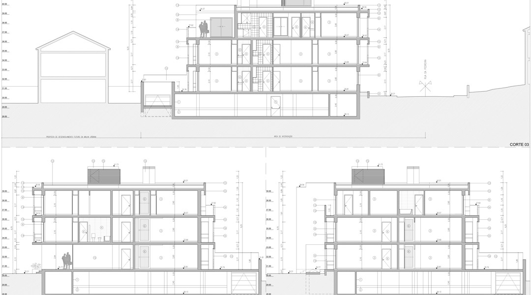
RÉS DO CHÃO
-
HABITAÇÃO 0A [T3] VENDIDA
- ÁREA BRUTA: 110.30 M2 / ÁREA ÚTIL: 87.98 M2 / ÁREA HABITAVEL: 66.85 M2
- Hall: 3,50 M2
- Cozinha: 9.65 M2
- Sala Estar/Jantar: 25.90 M2
- Arrumos: 6.40 M2
- Wc Social: 3.05 M2
- Quarto Nº1: 11.95m2
- Quarto Nº2: 13.35 M2
- Suite (Quarto Nº 3: 15.65 / Wc: 4.30 M2)
- Espaço Exterior (Varanda nº 01): 11,85 M2
- Espaço Exterior (Varanda nº 02): 18,90 M2
- Estacionamento Nº L16: 12.50 M2
- Arrecadação Nº 13 (01.15): 8.50 M2
-
-
HABITAÇÃO 0B [T2] - VENDIDA
- ÁREA BRUTA: 85.75 M2 / ÁREA ÚTIL: 71.51 M2 / ÁREA HABITAVEL: 52.45 M2
- Hall: 3,50 M2
- Cozinha: 19.50 M2
- Sala Estar/Jantar: 26.80 M2
- Arrumos: 5.90 M2
- Wc Social: 4.15 M2
- Quarto Nº1: 13.00M2
- Quarto Nº2: 12.65 M2
- Espaço Exterior (Varanda nº 01): 72.70 M2
- Estacionamento Nº L15: 12.50 M2
- Arrecadação Nº 12 (01.14): 7.10 M2
-
-
HABITAÇÃO 0C [T3] - VENDIDA
- ÁREA BRUTA: 112.20 M2 / ÁREA ÚTIL: 93.82 M2 / ÁREA HABITAVEL: 70.06 M2
- Hall: 3,50 M2
- Cozinha: 10.50 M2
- Sala Estar/Jantar: 30.15 M2
- Arrumos: 6.15 M2
- Wc Social: 3.70 M2
- Quarto Nº1: 11.60 M2
- Quarto Nº2: 11.60 M2
- Suite (Quarto Nº 3: 17.25 / Wc: 3.80 M2
- Espaço Exterior (Varanda nº 01): 45,30 M2
- Estacionamento Nº L11: 12.50 M2
- Arrecadação Nº 05 (01.07): 7.20 M2
-
-
HABITAÇÃO 0D [T2]
- ÁREA BRUTA: 86.10 M2 / ÁREA ÚTIL: 71.07 M2 / ÁREA HABITAVEL: 48.60 M2
- Hall: 7.80 M2
- Cozinha: 10.50 M2
- Sala Estar/Jantar: 20.25 M2
- Arrumos: 1.45 M2
- Wc Social: 6.45 M2
- Quarto Nº1: 16.45m2
- Quarto Nº2: 11.90 M2
- Estacionamento Nº L09: 12.50 M2
- Arrecadação Nº 06 (01.08): 7.20 M2
-
PREÇO - 175 000,00€
-
HABITAÇÃO 0E [T1] - VENDIDA
- ÁREA BRUTA: 65.35 M2 / ÁREA ÚTIL: 53.66 M2 / ÁREA HABITAVEL: 30.95 M2
- Hall: 4.25 M2
- Despensa: 2.55 M2
- Arrumos: 2.45 M2
- Cozinha: 9.90 M2
- Sala Estar/Jantar: 18.80 M2
- Wc Social: 3.80 M2
- Quarto Nº1: 12.15M2
- Estacionamento Nº L14: 13.80 M2
- Arrecadação Nº 11 (01.13): 7.10 M2
-
-
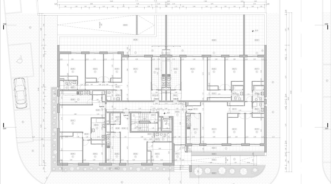
1 º ANDAR
-
HABITAÇÃO 1A [T3] VENDIDA
- ÁREA BRUTA: 110.30 M2 / ÁREA ÚTIL: 87.98 M2 / ÁREA HABITAVEL: 66.85 M2
- Hall: 3,50 M2
- Cozinha: 9.65 M2
- Sala Estar/Jantar: 25.90 M2
- Arrumos: 6.40 M2
- Wc Social: 3.05 M2
- Quarto Nº1: 11.95M2
- Quarto Nº2: 13.35 M2
- Suite (Quarto Nº 3: 15.65 / Wc: 4.30 M2)
- Espaço Exterior (Varanda nº 01): 11,85 M2
- Espaço Exterior (Varanda nº 02): 4.65 M2
- Estacionamento Nº L08: 19.00 M2
- Arrecadação Nº 12 (01.11): 8.30 M2
-
-
HABITAÇÃO 1B - TIPOLOGIA: T2 - VENDIDA
- ÁREA BRUTA: 85.75 M2 / ÁREA ÚTIL: 71.51 M2 / ÁREA HABITAVEL: 52.45 M2
- Hall: 3,50 M2
- Cozinha: 10.50 M2
- Sala Estar/Jantar: 26.80 M2
- Arrumos: 5.90 M2
- Wc Social: 4.15 M2
- Quarto Nº1: 13.00 M2
- Quarto Nº2: 12.65 M2
- Espaço Exterior (Varanda nº 01): 17.85 M2
- Estacionamento Nº L13: 14.50 M2
- Arrecadação Nº 10 (01.12): 7.10 M2
-
-
HABITAÇÃO 1C - TIPOLOGIA: T3 - VENDIDA
- ÁREA BRUTA: 112.20 M2 / ÁREA ÚTIL: 93.82 M2 / ÁREA HABITAVEL: 70.06 M2
- Hall: 3,50 M2
- Cozinha: 10.50 M2
- Sala Estar/Jantar: 30.15 M2
- Arrumos: 6.15 M2
- Wc Social: 3.70 M2
- Quarto Nº1: 11.60 M2
- Quarto Nº2: 11.60 M2
- Suite (Quarto Nº 3: 17.25 / Wc: 3.80 M2
- Espaço Exterior (Varanda nº 01): 19,65 M2
- Estacionamento Nº L12: 13.80 M2
- Arrecadação Nº 03 (01.05): 7.20 M2
-
-
HABITAÇÃO 1D - TIPOLOGIA: T2 - VENDIDa
- ÁREA BRUTA: 86.10 M2 / ÁREA ÚTIL: 71.07 M2 / ÁREA HABITAVEL: 48.60 M2
- Hall: 7.80 M2
- Cozinha: 10.50 M2
- Sala Estar/Jantar: 20.25 M2
- Arrumos: 1.45 M2
- Wc Social: 6.45 M2
- Quarto Nº1: 16.45m2
- Quarto Nº2: 11.90 M2
- Estacionamento Nº L10: 12.50 M2
- Arrecadação Nº 04 (01.06): 7.10 M2
-
-
-
HABITAÇÃO 1E - TIPOLOGIA: T2 - VENDIDa
- ÁREA BRUTA: 80.40 M2 / ÁREA ÚTIL: 66.11 M2 / ÁREA HABITAVEL: 38.90 M2
- Hall: 4.25 M2
- Despensa: 2.55 M2
- Arrumos: 4.45 M2
- Cozinha: 9.90 M2
- Sala Estar/Jantar: 18.60 M2
- Wc Social: 6.30 M2
- Quarto Nº1: 9.80m2
- Quarto Nº2: 10.50 M2
- Espaço Exterior (Varanda nº 01): 13,00 M2
- Estacionamento Nº L07: 18.95 M2
- Arrecadação Nº 08 (01.10): 7.20 M2
-
-
-
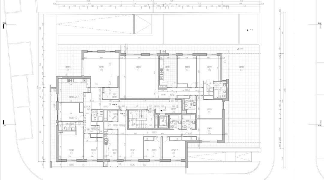
2 º ANDAR
-
HABITAÇÃO 2A - TIPOLOGIA: T3 VENDIDA
-
ÁREA BRUTA: 138.37 M2 / ÁREA ÚTIL: 115.52 M2 / ÁREA HABITAVEL: 83.70 M2
-
Hall: 4.35 M2
-
Cozinha: 13.50 M2
-
Sala Estar/Jantar: 40.20 M2
-
Arrumos: 5.50 M2
-
Wc Social: 5.50 M2
-
Quarto Nº1: 14.75m2
- Quarto Nº2: 13.30 M2
- Suite (Quarto Nº 3: 15.45 / Wc: 5.15 M2)
- Espaço Exterior (Varanda nº 01): 90,75 M2
- Estacionamento Nº L02 E 03: 26.40 M2
- Arrecadação Nº 01 (01.03): 8.40 M2
-
-
HABITAÇÃO 2B - TIPOLOGIA: T3 - VENDIDa
- ÁREA BRUTA: 137.18 M2 / ÁREA ÚTIL: 112.98 M2 / ÁREA HABITAVEL: 72.10 M2
- Hall: 3.50 M2
- Despensa: 4.30 M2
- Arrumos: 3.40 M2
- Cozinha: 16.70 M2
- Sala Estar/Jantar: 30.00 M2
- Wc Social: 3.25 M2
- Quarto Nº1: 11.30 M2
- Quarto Nº2: 12.00 M2
- Suite (Quarto Nº 3: 18.80 / Wc: 3.80 M2)
- Espaço Exterior (Varanda nº 01): 26,50 M2
- Espaço Exterior (Varanda nº 02): 16,65 M2
- Estacionamento Nº L01: 19.40 M2
- Arrecadação Nº 02 (01.04): 7.20 M2
-
-
-
HABITAÇÃO 2C - TIPOLOGIA: T3 VENDIDA
- ÁREA BRUTA: 107.97 M2 / ÁREA ÚTIL: 88.45 M2 / ÁREA HABITAVEL: 57.95 M2
- Hall: 4.25 M2
- Despensa: 2.55 M2
- Arrumos: 4.45 M2
- Cozinha: 9.90 M2
- Sala Estar/Jantar: 18.60 M2
- Wc Social: 4.00 M2
- Quarto Nº1: 9.80 M2
- Quarto Nº2: 12.25 M2
- Suite (Quarto Nº 3: 17.30 / Wc: 4.60 M2)
- Espaço Exterior (Varanda nº 01): 13,00 M2
- Espaço Exterior (Varanda nº 02): 32,60 M2
- Estacionamento Nº L06: 20.85 M2
- Arrecadação Nº 07 (01.09): 7.20 M2
-
-

























